arrow_back
Designer

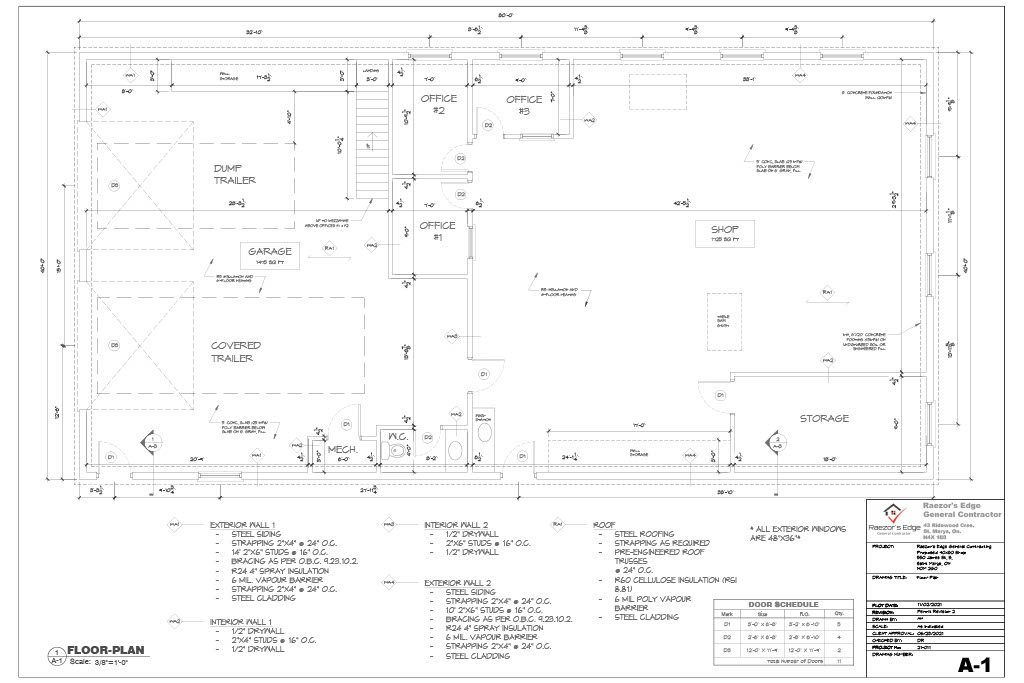
Commercial Shop

St. Marys, ON. | 2022

Owner
Raezor's Edge General Contractor
Contractor
Raezor's Edge General Contractor
Year
2022
Role
Designer

"If a project is intense, valid, and has a powerful idea, its imperfections will be in the background.”

- Alberto Campo Baeza