arrow_back
Designer

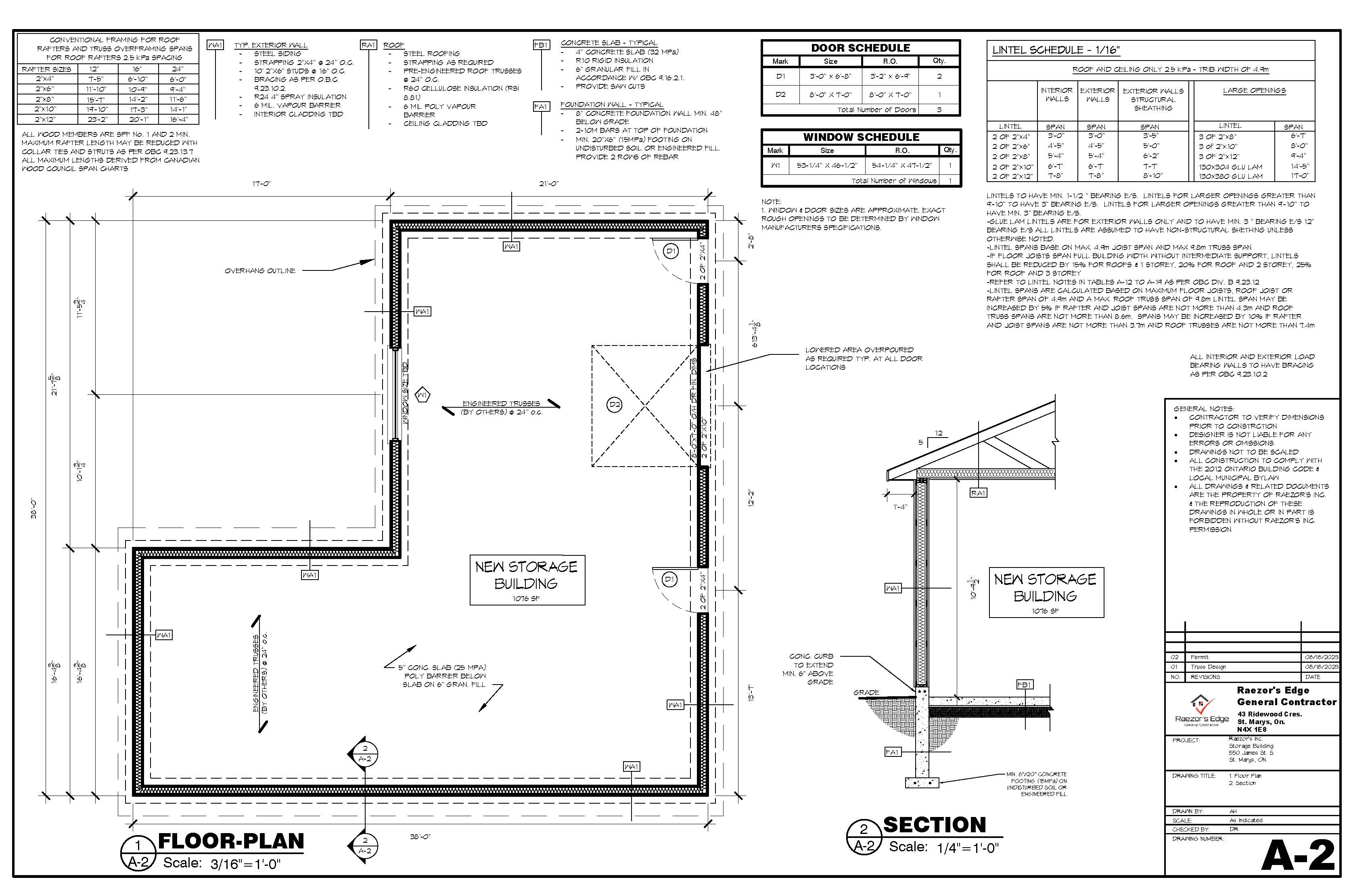
Commercial Storage Building

St. Marys, On. | Late 2023 (projected)

Owner
Raezor's Edge General Contractor
Contractor
Raezor's Edge General Contractor
Year
Late 2023 (projected)
Role
Designer

"The difference between good and bad architecture is the time you spend on it.”

- David Chipperfield