arrow_back
Designer

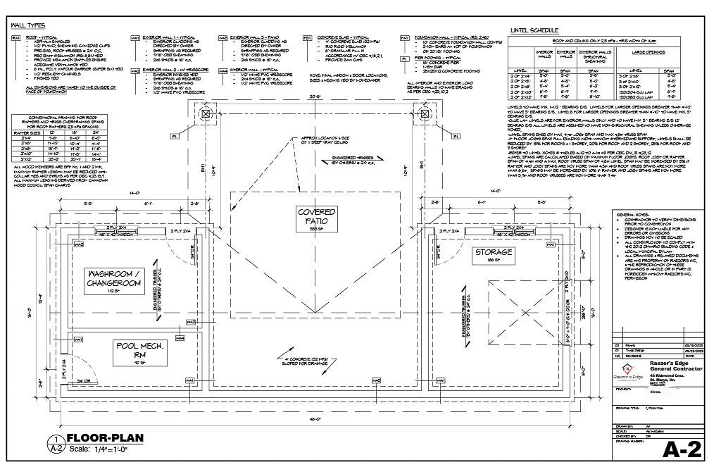
Timberframe Pool House

Sebringville, On. | 2024 (projected)

Owner
Residential
Contractor
Raezor's Edge General Contractor
Year
2024 (projected)
Role
Designer

"Architecture is a way of thinking about the world very similar in structure to writing a book, since both disciplines represent the same field and domain.”

- Rem Koolhaas